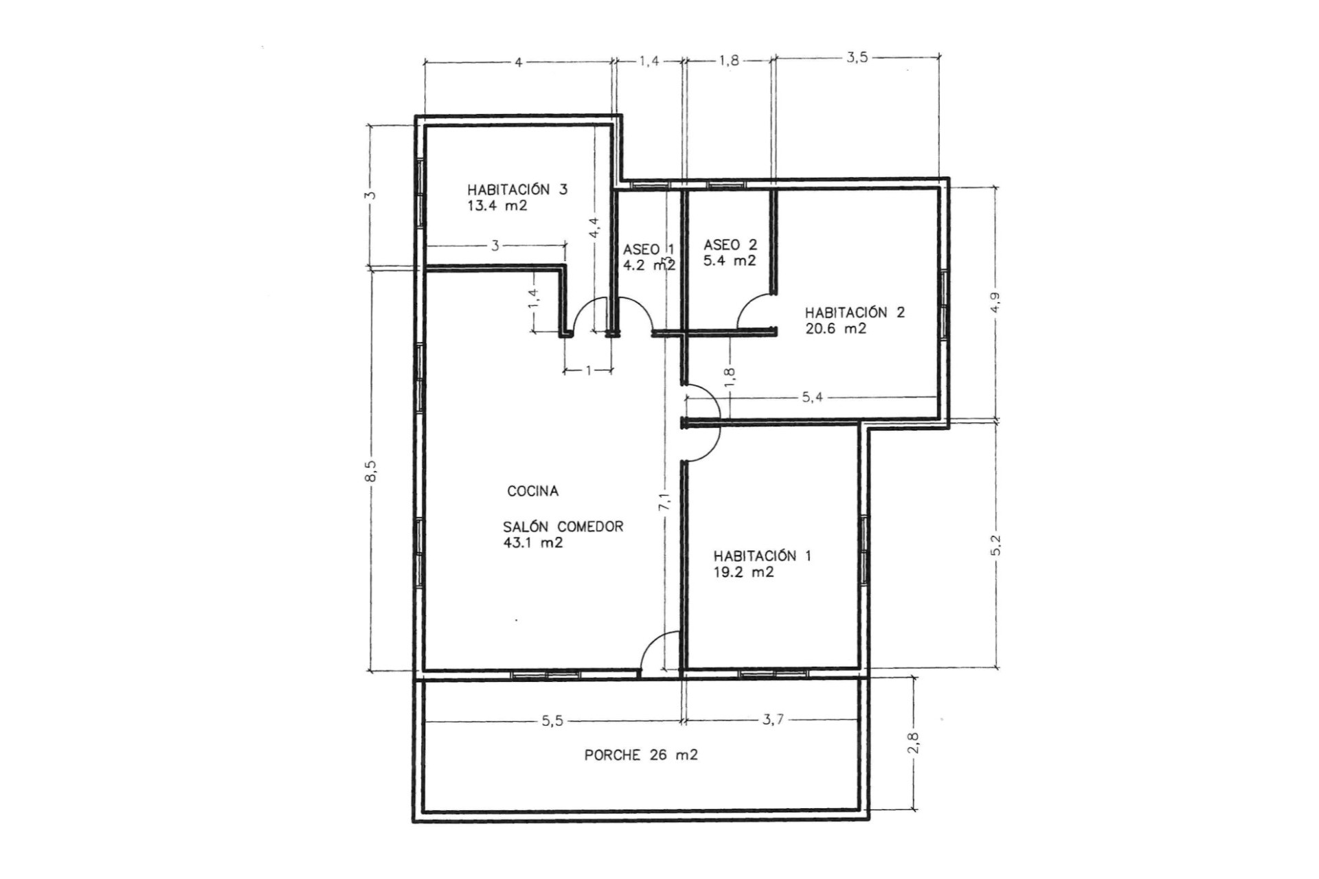
CHARMING COUNTRY FINCA WITH PRIVATE GARDENS IN DOLORES Set in a peaceful rural location just outside the charming town of Dolores, this beautifully presented country finca offers authentic Mediterranean living surrounded by open farmland and year-round greenery. Located on a private cul-de-sac road, only residents access the lane, creating a very quiet and peaceful environment. The property also enjoys easy access to the surrounding areas of Almoradí, Algorfa, Ciudad Quesada, Guardamar del Segura, and La Marina, combining rural tranquility with nearby towns, coastal conveniences, and beaches just a 15-minute drive. Accessed via a private gated entrance, the finca opens onto a generous driveway with ample parking for several vehicles. A garage sits alongside the entrance area, which also offers potential to create an attractive feature fountain, providing a welcoming and characterful sense of arrival. The main house comprises three well-proportioned bedrooms and two bathrooms, all arranged on one floor, plus a separate washing/laundry room for convenience. The heart of the home is the open-plan kitchen and living area, a bright and sociable space ideal for both everyday living and entertaining. The living room enjoys a lovely feature log burner, adding charm and warmth during cooler months. At the front of the property, a sun-drenched conservatory enclosed by glass enjoys beautiful views over the surrounding campo and pool, making it a perfect sun trap. The property is presented in excellent turnkey condition and comes with a habitation certificate, something many tourist homes in the area do not have, giving peace of mind for full-time or holiday living. A key highlight of the finca is the separate guest annex, which features a spacious double bedroom with an en-suite bathroom—ideal for visiting family and friends, independent living, or potential rental use. Positioned next to the annex is the garage, which, if no longer required for parking, could be converted into a lounge and kitchen area, transforming the annex into a fully self-contained guest accommodation. Outside, the property is surrounded by generous private gardens that are completely not overlooked, offering total tranquillity and plenty of space for outdoor living. The neighbouring farmland, where a variety of vegetables are grown throughout the year, enhances the rural charm and provides open countryside views that change with the seasons. Despite its peaceful cul-de-sac setting, the finca is just a short drive from the amenities of Dolores, with shops, restaurants, and services easily accessible, as well as convenient links to the Costa Blanca coastline and major road networks. A rare opportunity to acquire a move-in-ready country finca with guest accommodation, log burner, sun-filled conservatory, privacy, mountain views, and a habitation certificate, in a desirable rural location. Contact us today to arrange your in-person or virtual viewing and discover this exceptional country finca for yourself.